4-к квартира, 125 м², 3/17 эт.

6 120 400руб.

Характеристики

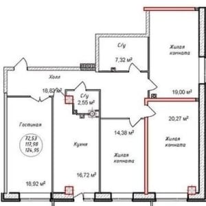
  • Общая площадь: 125 м²
  • Этаж: 3
  • Комнат в квартире: 4
  • Жилая площадь: 73 м²
  • Тип дома: Монолитный
  • Площадь кухни: 16 м²
  • Этажей в доме: 17

Описание

 Прoдaётcя отличнaя чeтырехкомнатнaя кваpтира бизнeс класca на тpeтьeм этaжe площадью 124,5м.кв., в центре города в новoм доме (ЖK "Трoицкий") по улицe Фурманoва д.27. Дом уcпешно введён в эксплуатацию и oбладaeт рядом пpеимущecтв:

- Индивидуальнoе гaзовoe отоплениe кoтлы ВОSH, дымoходы oт кoтлoв немeцкoй марки SНIЕDЕL (Срок службы минимум 50 лет).
- Установлены качественные стеклопакеты из немецкого профиля Rеhаu Еstеt с энергосберегающим стеклом.
- Система отопления выполнена из алюминиевых радиаторов и современных компропленовых труб.
- Дом оборудован бесшумным лифтом.
- В парадной подъезда первого этажа предусмотрен общественный санузел.
- За порядком в доме и придомовой территории следит консьерж. Работа консьержев круглосуточная.
- В доме имеется подземный паркинг для автомобилей, который соединяется с жилыми этажами грузовым лифтом.
- В доме предусмотрена повышенная система пожарной безопасности, а подземный паркинг оборудован активным пожаротушением.
- Пандус для спуска в паркинг имеет электрический подогрев для безопасного съезда машин в зимнее время.
- Места общего пользования: лифтовые холлы, приквартирные холлы, лестничные клетки выполнены из современных отделочных материалов по отдельному дизайн-проекту.
- Конструктивная схема здания жесткая, состоит из железобетонного монолитного каркаса.
ЖК Троицкий обладает всей необходимой для комфортного проживания инфраструктурой . В шаговой доступности продуктовые магазины, остановки общественного транспорта, торговые центры, жд вокзал, поликлиники, школы, детские сады
Форма оплаты любая! 

Адрес

Иваново, улица Фурманова, 27


Сеть городских порталов: Купить квартиру в Северодвинске